ÚVOD
O NÁS
REALIZACE
rekonstrukce
rezidence Biskupská 8
Stopkova pivnice
sídlo ČKAIT
vila Hlinky 86
dům U Tří kohoutů
administrativní a obchodní objekt
kulturní dům Rubínek
obchodní dům, Masarykova 12
oprava fasády, Masarykova 31
oprava fasády, Milady Horákové
administrativní budova, Hlinky 68
obchodní a komerční stavby
obchodní dům, Masarykova 12
dům U Tří kohoutů
obchodní prostory, Česká 8
polyfunkční objekt Vídeňská
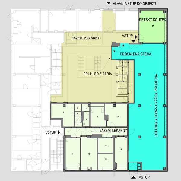
lékárna U Rubínu
bytové domy, rodinné domy, chaty
rodinný dům, Kanice
rodinný dům, Brno – Líšeň
rodinný dům, Moravský Krumlov
chata, Brno – Bystrc
rodinný dům, Lipůvka u Brna
interiéry
půdní vestavba, Hlinky 68
sídlo ČKAIT v Brně
vila Stiassni
kavárna U Rubínu
kancelář europoslance
vila Hlinky 86
kulturní dům Rubínek
lékárna U Rubínu
rychlé občerstvení, Vaňkovka
studie
vila Stiassni
Makovského náměstí v Brně
františkánský klášter v Brně
polyfunkční dům, Dominikánské nám.
dětské hřiště v Kroměříži
polyfunkční objekt, Benešova/Orlí
polyfunkční objekt, Lidická
autosalon Škoda, Brno-Vinohrady
VILA STIASSNI
současnost
výstava Brno – město s duchem bauhausu
historie
KONTAKT
KAVÁRNA U RUBÍNU
Makovského náměstí, Brno